Tomannsbolig med pulttak

Tomannsbolig med pulttak – NORDIC A

Tomannsbolig med pulttak er en enkel, funksjonell og moderne bolig med et tydelig arkitektonisk uttrykk. Byggets rene form, klare linjer og pulttak gir et moderne og ryddig preg som passer godt både i urbane omgivelser og i mindre tettbebygde områder.

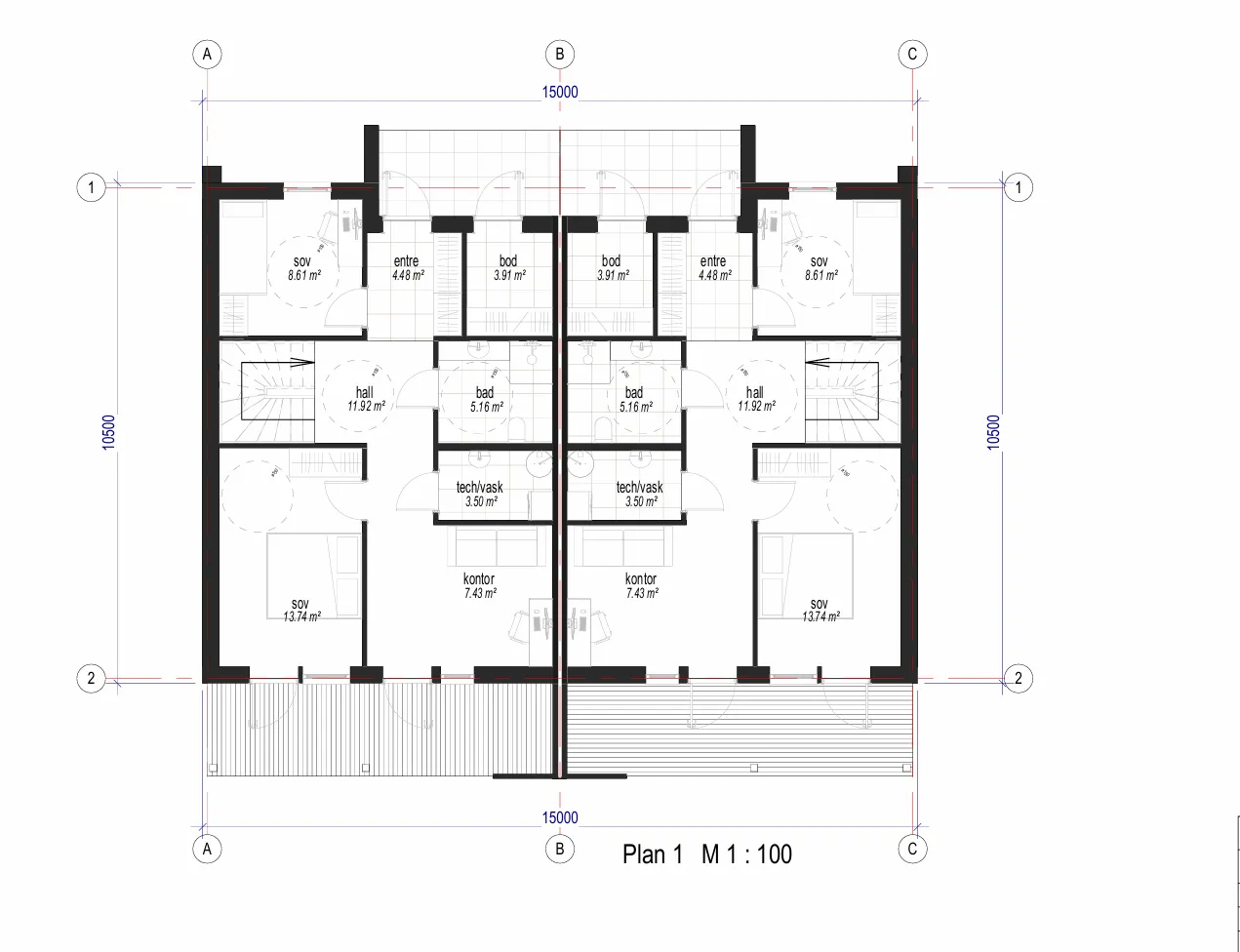
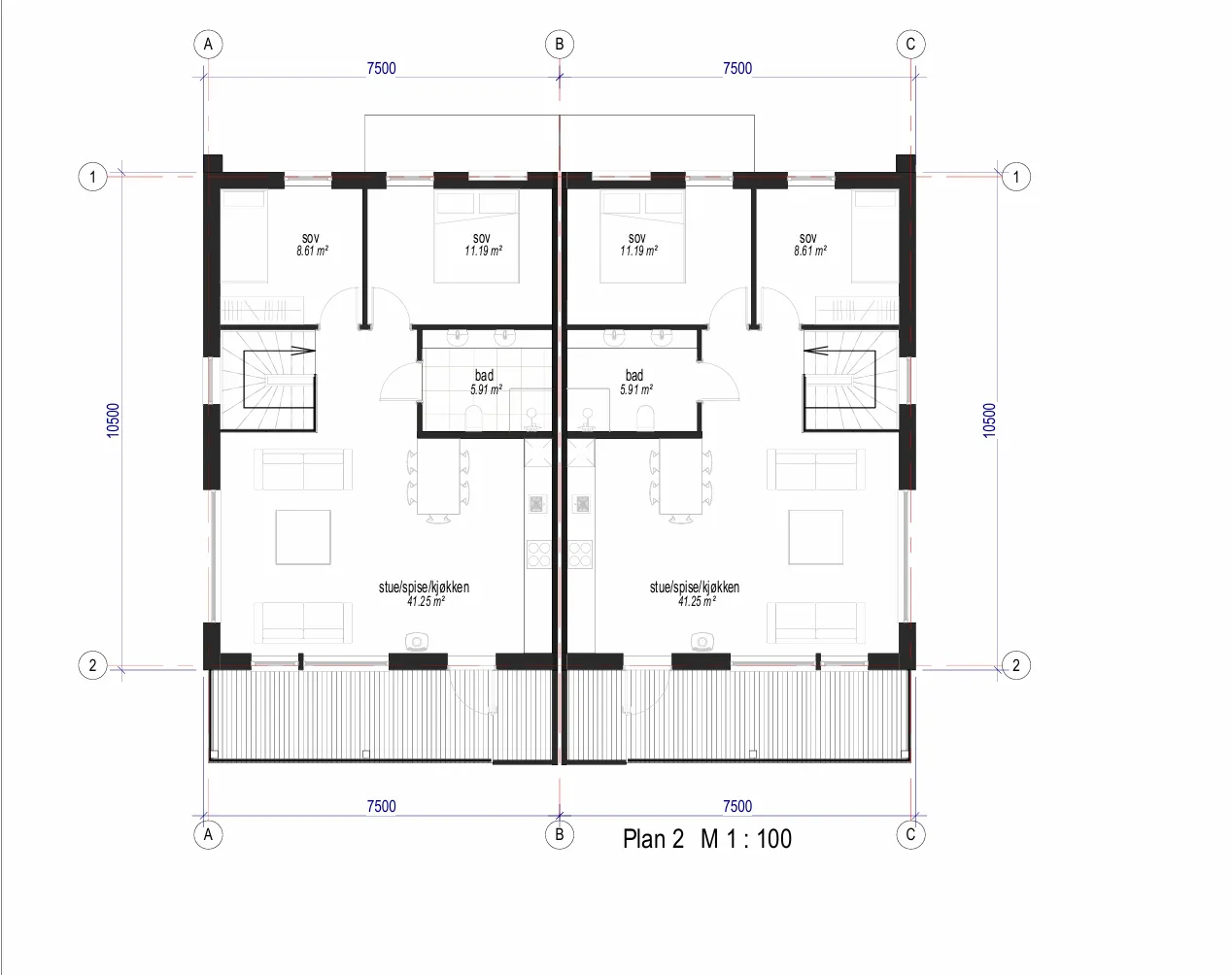
Denne tomannsboligen har en gjennomtenkt og romslig planløsning. Boligen inneholder 4 soverom og 2 bad, noe som gjør den godt egnet for familier som ønsker en praktisk og komfortabel bolig. Store vindusflater gir rikelig med dagslys og skaper lyse og trivelige oppholdsrom.

Hver boenhet har både terrasse på bakkeplan og balkong i andre etasje, som gir gode utearealer og økt bokvalitet. Uteplassene fungerer som en naturlig forlengelse av boligen og kan brukes gjennom store deler av året.

Prosjektet er tilpasset flatt terreng (flat tomt), noe som gir en kostnadseffektiv og rasjonell løsning med stor fleksibilitet når det gjelder plassering. Den kompakte bygningsformen og effektive arealutnyttelsen gjør prosjektet attraktivt både for private byggherrer og eiendomsutviklere.

Tomannsbolig med pulttak er et moderne, funksjonelt og fremtidsrettet boligprosjekt for dem som verdsetter god arkitektur, effektiv planløsning og høy bokvalitet.

Vi har en annen versjon av denne modellen: moderne tomannsbolig med takterrasse

Hvis du leter etter et økonomisk tomannsboligprosjekt, ta en titt på våre eksisterende prosjekter. Hvis du ikke finner et passende alternativ, designer vi et tilpasset prosjekt for deg – uavhengig av om tomten din er flat eller skrå.

BRA-i totalt:

BRA Åpnet (altan):

BRA seksjon:

L x B:

Tomtetype:

 260 m²

15 m²

130 m²

Ingen informasjon

Flat tomt

Soverom:

Bad:

Innvendig bod:

4 Hver seksjon

2 Hver seksjon

JA

Share:

Tomannsbolig med pulttak – NORDIC A

3D perspektiver

Plantegninger og fasader

Hvis dette prosjektet ikke passer dine behov?

Du kan også like dette

Tomannsbolig med takterrasse – Black pearl

Tegninger tipasset på deres behov fra: 38,000 NOK eks. mva.

Byggesett pris – INGEN

Funkis Tomannsbolig med takterrasse

Tegninger tipasset på deres behov fra: 38,000 NOK eks. mva.

Byggesett pris fra: 780 EUR/m2

Tomannsbolig med garasje og takterrasse

Tegninger tipasset på deres behov fra: 42,000 NOK eks. mva.

Byggesett pris fra: 790 EUR/m2

Ferdig tomannsbolig med takterrasse

Tegninger tipasset på deres behov fra: 42,000 NOK eks. mva.

Byggesett pris fra: 770 EUR/m2

Bergen DUO-2

Tegninger tipasset på deres behov - 36,000 NOK eks. mva.

Byggesett pris – 204,900 EUR eks. mva

Tomannsbolig med pulttak – NORDIC A

Tegninger tipasset på deres behov fra: 38,000 NOK eks. mva.

Byggesett pris fra: 720 EUR/m2

Er du en profesjonell aktør?

Vi tilbyr et bredt spekter av tjenester for utbyggere: fra å utvikle en unik konsept og kostnadsanalyse til profesjonell assistanse gjennom hele prosjektets gjennomføring. Vårt team kan bidra til å designe funksjonelle og tiltalende bygg, forberede detaljerte prosjekteringsløsninger og koordinere alle trinnene frem til en vellykket fullføring av prosjektet.

Vi sørger også for transport av ferdigproduserte hus, slik at vi kan håndtere prosjektet fra start til slutt for en smidig og komplett opplevelse.

Er du en profesjonell aktør?

Dette nettstedet bruker informasjonskapsler for å sikre at du får den beste opplevelsen på nettstedet vårt. Les mer